Corail recherche sa toute dernière famille !

Les derniers membres actifs se sont rapprochés d'un nouvel opérateur, très intéressé par la démarche participative, avec lequel le travail a repris de façon effective en septembre 2020. Un troisième collectif de 9 foyers s'est alors constitué.
Un nouveau projet a été alors élaboré en tenant compte des nouvelles contraintes d'urbanisme et des demandes de plus de logements plus petits.
Le collectif est aujourd'hui composé de 11 foyers pour 12 logements, il reste donc un dernier logement disponible. L'emménagement dans les lieux est prévu pour mars-avril 2026.
Au-delà du projet immobilier, les collectifs successifs de l’association Corail ont élaboré une charte qui exprime les objectifs poursuivis et les valeurs partagées, qui demeurent l’ADN du projet.
Caractéristiques du projet
- Un nouveau permis de construire, déposé en septembre 2021, a été obtenu en février 2022 pour la construction de 12 logements allant du T3 au T5 pour une SHAB totale de 885 m2 et d'une maison commune de 53 m2.
- Le projet initial de logements passifs, trop onéreux, s’est orienté vers un projet bois-laine de bois dans un objectif de maintien du confort d’été par une performance énergétique exemplaire.
- La Maîtrise d’Ouvrage est assurée par UNICIL (Entreprise sociale pour l'Habitat). La vente des logements aux familles sera effectuée dans le cadre du dispositif d’accession sociale à la propriété - PSLA (TVA à 5,5%, éxonération de taxe foncière pendant les 15 premières années). Les futurs habitants seront locataires 6 mois au minimum avant de pouvoir lever l'option d'achat de leur logement.
- Les revenus des futurs acquéreurs doivent respecter les Plafonds PSLA (zone A). Les revenus pris en compte seront ceux de l'année 2022 pour un signature d'un contrat de réservation en 2024.
- L’estimation actuelle prévoit un prix de vente moyen des logements de 3100€ le m2 de SHAB. Les espaces communs sont intégrés dans le prix. Une pondération du coût des logements est prévue en fonction de leurs caractéristiques.
Raison d'être du projet
Le collectif a écrit en quelques lignes les ambitions de ce projet.Vivre à Corail, c’est vivre dans un environnement qui favorise des liens chaleureux et épanouissants, dans un esprit de partage et de solidarité.
Ce lieu de vie se veut une réappropriation citoyenne de la manière d’habiter et d’accueillir, pensé dans le respect du vivant et une logique de communs.
Un lieu fertile pour l’émergence d’autres possibles.
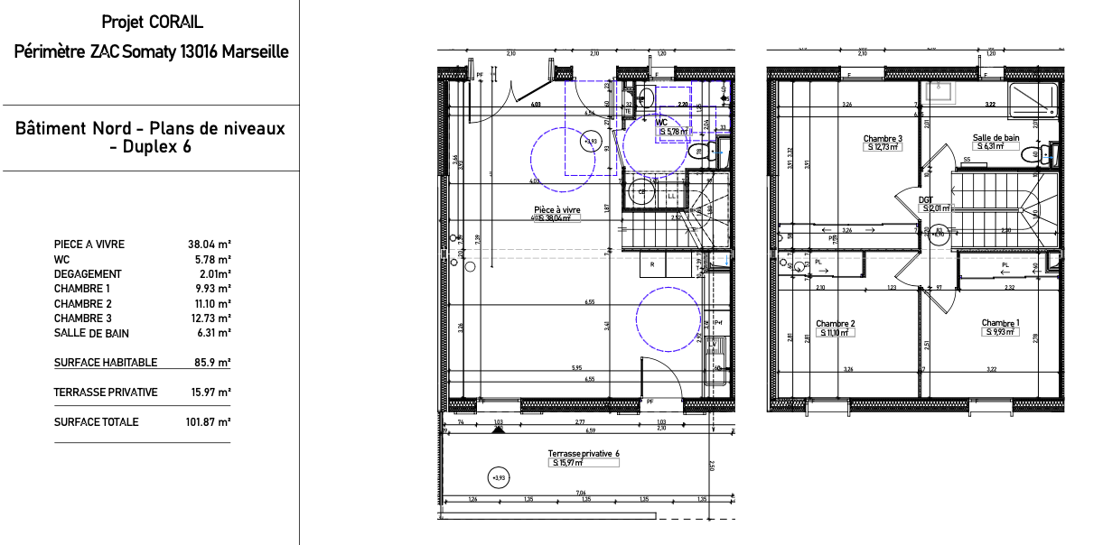
Plan du logement disponible
Situation du terrain
Le terrain se situe à quelques minutes à pied de la gare de l’EstaqueVous êtes intéressés ?
Nous vous conseillons dans un premier temps de vérifier votre éligibilité au dispositif d’accession sociale (plafond de ressources) et votre capacité d’emprunt bancaire, puis de nous transmettre les éléments suivants à l’adresse corailestaque@gmail.com afin que nous vous contactions pour une rencontre/visite sur le terrain.- Présentation et intérêt pour l’habitat participatif et pour ce projet
- Composition de la famille
- Besoins en nombre de pièces et surface habitable
A bientôt !
